관련상품
-
상품 상세설명
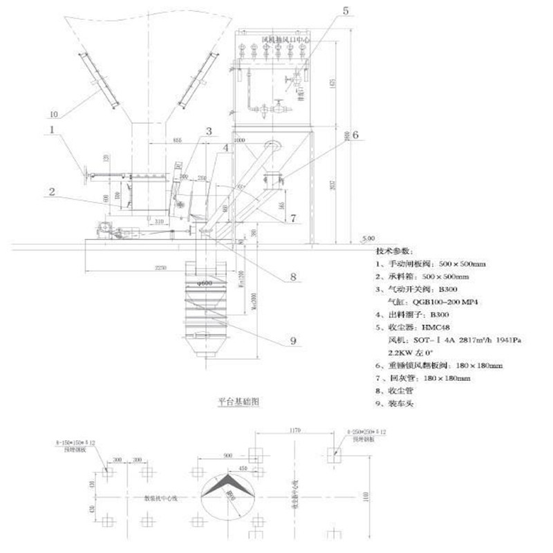
汽车散装机


汽车散装机主要用于散装水泥以及建材、冶金、煤炭、化工、粮食等部门粉状物料车(船)装卸。该系列产品九三年通过省级新产品鉴定,九四年被评为省优秀新产品金牛奖、市优秀新产品金鹰奖。技术指标均达到国际同类产品水平。该机具有自动控制,卸料能力大、无粉尘污染、料满指示可靠、结构简单、造价低廉等特点。

装车能力(t/h)
60-300
60-300
落料高度(m)
1.5-5
1.5-5
散装头升降速度( m/s)
0.19
0.19
斜槽工作风压(Pa)
3.5-55×103
斜槽工作风置(m3/min)
2.5-5
料位计工作风压(Pa)
2.5-4.5×103
2.5-4.5×103
料位工作风量(m3/min)
0.025-0.05
0.025-0.05
离心风机
9-19-4A 2.2Kw
826-1209m3/h
罗茨风机或空压机
D14×20Q=2.34m3 /min N=3Kw
(罗茨风机)
压力0.7MPa N=0.37Kw 排气量0.036m3/min空压机
装机总容量(Kw)
1.5
4
火车散装机
汽车散装机
装卸能力(t/h)
300
120-150
双斜槽移动速度(m/s)
0.15-0.2
散装头升降速度(m/s)
0.15-0.18
双斜槽移动最大距离(mm)
6000
600
散装头下降最大行程(mm)
2500
1620
卷扬机实际需用功率
1.5
1.5
卷扬机用电机
YEJ90L-6 1.1Kw 380V
双斜槽实际需用功率(Kw)
1
驱动双斜槽走动的减速电动机
BWY22-1.5-87
振动器功率(Kw)
0.06-0.1
0.6
料位计
超声波粒位计USK-O01
收尘通风量(m3/h)
1500-2000
1500-2000
双斜槽规格
B=500
斜槽斜度
14%
斜槽用高压鼓风机
B6-27-11N0.6.5A
695mmH2O



상품정보 제공고시
주문 번호. ZSQ-150 브랜드 Feixu 모델 ZSQ-150 항목 번호. ZSQ-150 제품 별칭 적재 기계 사용 로딩 해당 산업 시멘트 플랜트 · 발전소 제품 사용 로딩 사양 150 -
배송/교환정보